造纸设备
制浆设备
碳酸钙及石灰水处理设备
弧形筛TOPCREAT


TOPCREAT弧形筛是凯瑞公司在总结国内弧形筛工艺.并引进国外新技术而研发新一代纤维回收设备,设备无转动及振动部件,不需动力转动,操作简单可靠可广泛用于造纸工业中的白水回收、纸浆浓缩(与压力筛良浆出口对接来提高浆的浓度)、废纸脱墨净洗等固液分离系统,以及纺织印染、食品、酿造制糖等行业生产工艺中的筛滤设备.是一种用途广泛.高效、节能型水处理设备.
工作原理:
TOPCREAT弧形筛采用压力喷射上料结构设计,液体物料通过唇板开度可调的进料箱以切线方向Ⅱ贲射到弧形筛板上,喷射力推动物料通过弧形筛板的表面,依靠物料的喷射力和重力作用使液体和细小颗粒物通过筛板的缝隙,汇集到滤液出口:不能通过筛缝的固形物颗粒被筛板阻隔并沿着料流的方向流动到出料口而实现固液分离.
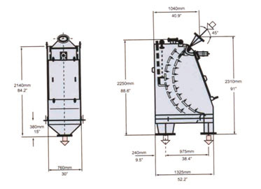
设备参数:


性能特点:
·不锈钢条缝式筛板:
根据不同的应用情况筛缝宽度在0.1—0.5毫米之间选择:
·加强式机壳,设有前后盖门,法兰连接的滤液出口和排料口:进料箱.带法兰连接的进料口,料唇板开度可调:压力式进料和栅条式弧形筛板确保较高的过滤能力:
·用于喷料唇板开度调节和唇口冲刷的气动装置:避免进料箱唇口处固形物淤积,可定期地将唇板瞬时开启,以将唇口处的堆积物冲刷掉:
·用于清洗筛板的摆动式高压喷水管.间歇冲洗筛板.保持筛缝畅通和清洁:
·气动控制箱:筛板冲洗和进料箱唇口冲刷均由气动装置自动的执行。
特别设计:

采用楔形筛线,缝宽可在100、150、200和250μm 间歇式筛板冲洗装置
之间选择
结构特点:
TOPCREAT弧形筛有三种规格,可根据不同的处理能力和应用情况选用.


【返回 】
